Vastgoedkantoor MARVY
Dieplaan 67
3600
Genk
T.+32 89 36 45 50
E.info@marvy.be
INTREKKLAAR APPARTEMENT PAL IN GENK-CENTUM
Appartement voor € 750
Europalaan 86/7,
3600
Genk
Bekijk op kaart
Ref: HD066/2026
Dit gerenoveerde appartement, gelegen aan de voorzijde, biedt een unieke woonervaring in het hart van Genk-centrum.
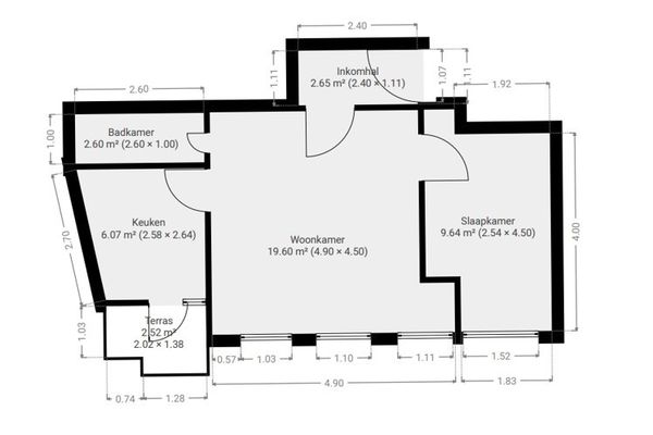
INDELING: praktische inkomhal, ruime aangename woonkamer (+/- 4,45 m x 4,20 m). Dankzij de grote raampartijen baadt de leefruimte in het daglicht, verder een moderne geïnstalleerde keuken met directe toegang tot het balkon. De vernieuwde badkamer is voorzien van een douche, hip badkamermeubel en toilet. Een aangename SLAAPKAMER (+/- 4 m x 2,50 m), tevens voorzien van veel lichtinval.
+ gezellig BALKON aan de voorzijde
INDELING: praktische inkomhal, ruime aangename woonkamer (+/- 4,45 m x 4,20 m). Dankzij de grote raampartijen baadt de leefruimte in het daglicht, verder een moderne geïnstalleerde keuken met directe toegang tot het balkon. De vernieuwde badkamer is voorzien van een douche, hip badkamermeubel en toilet. Een aangename SLAAPKAMER (+/- 4 m x 2,50 m), tevens voorzien van veel lichtinval.
+ gezellig BALKON aan de voorzijde
| Troeven |
|
| Naam |
Gianna GRANAROLI
|
| Prijs |
€ 750
|
| Maandelijkse lasten |
€ 50,00
|
Gelijkvloers
| Inkomhal |
|
| Woonkamer |
|
| Keuken |
|
| Badkamer |
|
| Slaapkamer |
|
| EPC |
332 kWh/m2/jaar
|
| Label |
|
332 kWh/m2/jaar
| Bewoonbare opp. |
66 m²
|
| Airco |
Ja
|
| Elektriciteit |
Ja
|
| Stadswater |
Ja
|
| Verdieping |
5
|
| Renovatiejaar |
2025
|
| Lift |
Ja
|
| Stedenbouwkundige bestemming |
Niet ingegeven
|
| Dagvaarding voor stedenbouwkundige overtreding |
Niet ingegeven
|
| Bouwvergunning |
Niet ingegeven
|
| Verkavelingsvergunning |
Niet ingegeven
|
| Voorkooprecht |
Niet ingegeven
|
| Beschermd erfgoed |
Niet ingegeven
|
| Renovatieplicht |
Niet ingegeven
|