Vastgoedkantoor MARVY
Dieplaan 67
3600
Genk
T.+32 89 36 45 50
E.info@marvy.be
Rustig gelegen en ruim appartement met zonnig terras en garage
Ruim appartement voor € 225.000
Weg Naar As 121B/52,
3600
Genk
Bekijk op kaart
Ref: VD29/2025*
Dit ruime appartement tussen het groen is de ideale plek voor wie houdt van rust, licht en ruimte. Dankzij de doordachte indeling en de grote raampartijen is dit een aangename woonst die bovendien op termijn verder naar eigen smaak kan worden afgewerkt.
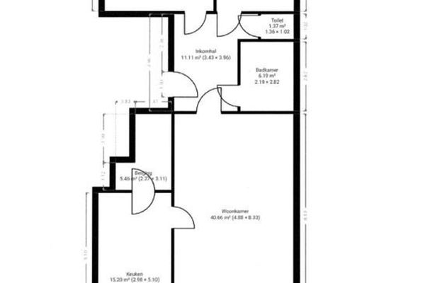
INDELING: zeer ruime inkomhal, lichtrijke woonkamer (+/- 8,30 x 4,60 m) uitgevend op het zonnige terras over de volledige breedte van de woonkamer en de keuken met zicht op het groen, geïnstalleerde keuken, berging, badkamer, toilet, 2 ruime SLAAPKAMERS (+/- 5,40 x 3,20m) en (+/- 5,40 x 4,50 m).
+ Ruim overdekt TERRAS overgoten met zon met uitzicht op het groen
+ bovengrondse GARAGE (nr. 17 met tevens voldoende bergruimte hierin aanwezig)
+ voldoende parkeergelegenheid rondom de residentie voor bezoek
Wat het appartement extra aantrekkelijk maakt voor zowel starters als investeerders, is dat er geen energetische renovatieverplichting van toepassing. Een mooie kans voor wie op zoek is naar een ruim appartement, die je je stap voor stap eigen kunt maken.
Gelegen op een aangename, rustige locatie desalniettemin in de onmiddellijke nabijheid van scholen, diverse supermarkten, de BasicFit, de bakker, Molenvijverpark,… en tevens op een boogscheut verwijderd van Genk-centrum. Vlotte verbinding naar As, Zutendaal, de N75 en de E314
Kortom een ruim appartement gelegen in een oase van rust nabij het centrum van Genk.
INDELING: zeer ruime inkomhal, lichtrijke woonkamer (+/- 8,30 x 4,60 m) uitgevend op het zonnige terras over de volledige breedte van de woonkamer en de keuken met zicht op het groen, geïnstalleerde keuken, berging, badkamer, toilet, 2 ruime SLAAPKAMERS (+/- 5,40 x 3,20m) en (+/- 5,40 x 4,50 m).
+ Ruim overdekt TERRAS overgoten met zon met uitzicht op het groen
+ bovengrondse GARAGE (nr. 17 met tevens voldoende bergruimte hierin aanwezig)
+ voldoende parkeergelegenheid rondom de residentie voor bezoek
Wat het appartement extra aantrekkelijk maakt voor zowel starters als investeerders, is dat er geen energetische renovatieverplichting van toepassing. Een mooie kans voor wie op zoek is naar een ruim appartement, die je je stap voor stap eigen kunt maken.
Gelegen op een aangename, rustige locatie desalniettemin in de onmiddellijke nabijheid van scholen, diverse supermarkten, de BasicFit, de bakker, Molenvijverpark,… en tevens op een boogscheut verwijderd van Genk-centrum. Vlotte verbinding naar As, Zutendaal, de N75 en de E314
Kortom een ruim appartement gelegen in een oase van rust nabij het centrum van Genk.
TROEVEN |
|
Naam |
Werner GRAULS
|
Prijs |
€ 225.000
|
Gelijkvloers
Inkomhal |
|
Woonkamer |
|
Terras |
|
Keuken |
|
Berging |
|
Badkamer |
|
Toilet |
|
2x Slaapkamer |
|
EPC |
223 kWh/m2/jaar
|
Label |
|
223 kWh/m2/jaar
Bewoonbare opp. |
100 m²
|
Elektriciteit |
Ja
|
Stadswater |
Ja
|
Verdieping |
2
|
Bouwjaar |
1977
|
Stedenbouwkundige bestemming |
Woongebied
|
Dagvaarding voor stedenbouwkundige overtreding |
Niet ingegeven
|
Bouwvergunning |
Bouw vergund
|
Verkavelingsvergunning |
Neen
|
Voorkooprecht |
Neen
|
Beschermd erfgoed |
Niet ingegeven
|
Renovatieplicht |
Niet ingegeven
|