Vastgoedkantoor MARVY
Dieplaan 67
3600
Genk
T.+32 89 36 45 50
E.info@marvy.be
Handels / kantoorruimte pal aan het centrum van Genk
Kantoorruimte voor € 1.190
Bochtlaan 23/1,
3600
Genk
Bekijk op kaart
Ref: HD003/2025
Deze mooie handelsruimte met veel lichtinval en een brede etalage biedt veel opportuniteiten en geniet een centrale ligging aan de rand van het winkelcentrum. Voorheen ingericht als kantoorruimte, maar perfect geschikt voor uiteenlopende activiteiten, waaronder de uitoefening van een vrij beroep / handel. Het pand is vlot bereikbaar zowel via de Bochtlaan als de Pastoor Raeymaekersstraat en geniet van een uitstekende zichtbaarheid in het straatbeeld.
indeling:
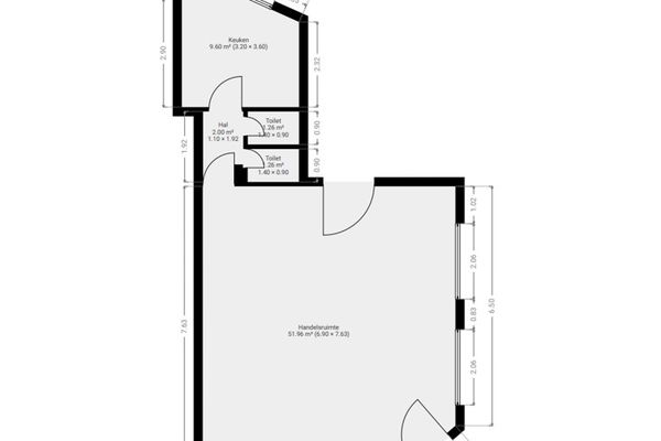
ruime handelsruimte (+/- 7 x 6m) met veel raampartijen, hal, 2 aparte toiletten en ruimte met kitchenette. Tevens voorzien van extra bergruimte in de kelder.
troeven:
onmiddellijk
indeling:
ruime handelsruimte (+/- 7 x 6m) met veel raampartijen, hal, 2 aparte toiletten en ruimte met kitchenette. Tevens voorzien van extra bergruimte in de kelder.
troeven:
- uitstekende locatie / centraal gelegen
- brede etalage met veel raampartijen
- degelijke afwerking en materialen
- uitstekende zichtbaarheid in het straatbeeld
onmiddellijk
| Bewoonbare opp. |
76 m²
|
| Stedenbouwkundige bestemming |
Niet ingegeven
|
| Dagvaarding voor stedenbouwkundige overtreding |
Niet ingegeven
|
| Bouwvergunning |
Niet ingegeven
|
| Verkavelingsvergunning |
Niet ingegeven
|
| Voorkooprecht |
Niet ingegeven
|
| Beschermd erfgoed |
Niet ingegeven
|
| Renovatieplicht |
Niet ingegeven
|