Vastgoedkantoor MARVY
Dieplaan 67
3600
Genk
T.+32 89 36 45 50
E.info@marvy.be
RUIM GELIJKVLOERS APPARTEMENT MET TERRAS EN TUIN
Gelijkvloers app. voor € 390.000
André Dumontlaan 16/1,
3665
As
Bekijk op kaart
Ref: VD10/2026 (VD43/2025)
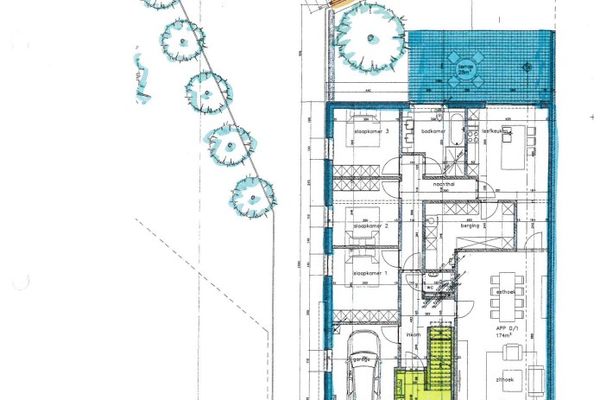
Ontdek dit prachtig lichtrijk en uitzonderlijk ruim gelijkvloers appartement (194m²) met terras én tuin, gelegen in de kleinschalige residentie Etna.
INDELING:
Inkomhal, gastentoilet, zeer ruime en aangename woonkamer (+/- 8,8 x 4,8m), volledig modern uitgeruste ruime open keuken met keukeneiland (vaatwasser - combi-oven, e.d.) uitgevend op het terras (28 m²), ruime berging/wasplaats, nachthal, badkamer (ligbad - inloopdouche - toilet - dubbel lavabomeubel), 3 ruime SLAAPKAMERS (+/-3,5 x 3,6m, +/-3,5 x 3,5m en +/-3,5 x 3,8m).
+ inpandige GARAGE
+ TERRAS (28 m²)
+ TUIN
Centraal gelegen net buiten het centrum van As. Op een boogscheut van het postkantoor, de bibliotheek en scholen “Vrije basisschool As” en “Gemeentelijke basisschool As”.
Vlotte verbinding naar Genk, Opglabbeek, Maasmechelen, Dilsen-Stokkem, ...
TROEVEN
INDELING:
Inkomhal, gastentoilet, zeer ruime en aangename woonkamer (+/- 8,8 x 4,8m), volledig modern uitgeruste ruime open keuken met keukeneiland (vaatwasser - combi-oven, e.d.) uitgevend op het terras (28 m²), ruime berging/wasplaats, nachthal, badkamer (ligbad - inloopdouche - toilet - dubbel lavabomeubel), 3 ruime SLAAPKAMERS (+/-3,5 x 3,6m, +/-3,5 x 3,5m en +/-3,5 x 3,8m).
+ inpandige GARAGE
+ TERRAS (28 m²)
+ TUIN
Centraal gelegen net buiten het centrum van As. Op een boogscheut van het postkantoor, de bibliotheek en scholen “Vrije basisschool As” en “Gemeentelijke basisschool As”.
Vlotte verbinding naar Genk, Opglabbeek, Maasmechelen, Dilsen-Stokkem, ...
TROEVEN
- Zéér ruim, recent appartement
- Ruime, lichtrijke ruimtes
- Groot terras uitgevend op de tuin
- Inpandige garage
| Naam |
Laura GRAULS
|
| Prijs |
€ 390.000
|
Gelijkvloers
| Inkomhal |
|
| Toilet |
|
| Woonkamer |
|
| Keuken |
|
| Berging |
|
| Badkamer |
|
| 3x Slaapkamer |
|
| Garage |
|
| Terras |
|
| Tuin |
|
| EPC |
191 kWh/m2/jaar
|
| Label |
|
191 kWh/m2/jaar
| Bewoonbare opp. |
194 m²
|
| Bouwjaar |
2015
|
| Overstromingsgevoeligheid |
Niet overstromingsgevoelig
|
| G(ebouw)-score |
A
|
| P(erceel)-score |
A
|
| Stedenbouwkundige bestemming |
Niet ingegeven
|
| Dagvaarding voor stedenbouwkundige overtreding |
Niet ingegeven
|
| Bouwvergunning |
Niet ingegeven
|
| Verkavelingsvergunning |
Niet ingegeven
|
| Voorkooprecht |
Niet ingegeven
|
| Beschermd erfgoed |
Niet ingegeven
|
| Renovatieplicht |
Niet ingegeven
|