Vastgoedkantoor MARVY
Dieplaan 67
3600
Genk
T.+32 89 36 45 50
E.info@marvy.be
TRIPLEX-APPARTEMENT MET 2 TERRASSEN, TUIN EN BOS
Triplex voor € 349.000
Molenweg 166A,
3660
Opglabbeek
Bekijk op kaart
Ref: VD16/2026 (VD49/2025)
TRIPLEX-APPARTEMENT MET 2 TERRASSEN, TUIN EN BOS
Ontdek dit unieke triplex-appartement voorzien van 2 grote terrassen met prachtig uitzicht op de achterliggende tuin en het bos. Gelegen in een oase van rust en voorzien van de nodige privacy.
INDELING:
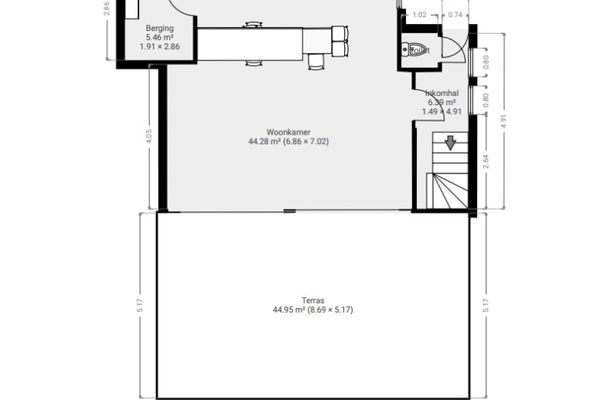
GLV: Inkomhal met afgesloten toegang tot de kelder/garagetrap, gastentoilet, moderne woonkamer (+/-7,50 x 3,70m) voorzien van maatkasten, een ingebouwd bureel en grote raampartijen / veel daglicht uitgevend op het zeer ruime terras (+/- 9,50 x 5,20m) met uitzicht op de tuin en het bos. Verder voorzien van een uitgeruste open keuken voorzien van kwalitatieve toestellen (AEG) met aansluitend de berging.
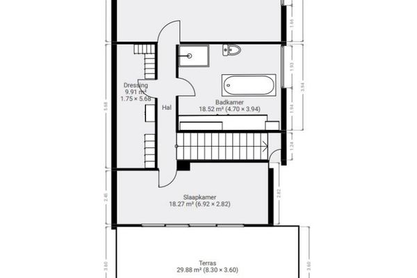
VERD 1: Nachthal, ruime badkamer (inloopdouche - luxe whirpoolbad – dubbele lavabo – badkamermeubel - toilet), dressing, 2 ruime SLAAPKAMERS (+/-5,75x 3,35m) en (+/- 7x3,50m) waarvan 1 uitgevend op het ruime dakterras (+/- 7,60 x 3,70m).
+ 2 zeer ruime DAKTERRASSEN met prachtig uitzicht
+ tuin aansluitend op het BOS van 59a 20ca (inbegrepen in de prijs)
+ zeer ruime inpandige GARAGE voorzien van een sectionale poort
+ CARPORT / OPRIT
+ VOLLEDIG ONDERKELDERD
+ VELE EXTRA’S: hoogwaardige afwerking en materiaalkeuze, maatkasten, uitzonderlijk uitzicht, e.d.
Gelegen in een zéér kleinschalige residentie, bestaande uit slechts twee ‘appartementen’. Dit zorgt voor de beleving van een woonhuis, met de nodige privacy. Wonen in een rustige landelijke omgeving. Ideaal voor wie rust wil combineren met bereikbaarheid. Verder zijn er diverse natuurgebieden in de buurt.
De aanpalende/voorliggende woonst wordt eveneens te koop aangeboden via Vastgoedkantoor MARVY.
TROEVEN:
Ontdek dit unieke triplex-appartement voorzien van 2 grote terrassen met prachtig uitzicht op de achterliggende tuin en het bos. Gelegen in een oase van rust en voorzien van de nodige privacy.
INDELING:
GLV: Inkomhal met afgesloten toegang tot de kelder/garagetrap, gastentoilet, moderne woonkamer (+/-7,50 x 3,70m) voorzien van maatkasten, een ingebouwd bureel en grote raampartijen / veel daglicht uitgevend op het zeer ruime terras (+/- 9,50 x 5,20m) met uitzicht op de tuin en het bos. Verder voorzien van een uitgeruste open keuken voorzien van kwalitatieve toestellen (AEG) met aansluitend de berging.
VERD 1: Nachthal, ruime badkamer (inloopdouche - luxe whirpoolbad – dubbele lavabo – badkamermeubel - toilet), dressing, 2 ruime SLAAPKAMERS (+/-5,75x 3,35m) en (+/- 7x3,50m) waarvan 1 uitgevend op het ruime dakterras (+/- 7,60 x 3,70m).
+ 2 zeer ruime DAKTERRASSEN met prachtig uitzicht
+ tuin aansluitend op het BOS van 59a 20ca (inbegrepen in de prijs)
+ zeer ruime inpandige GARAGE voorzien van een sectionale poort
+ CARPORT / OPRIT
+ VOLLEDIG ONDERKELDERD
+ VELE EXTRA’S: hoogwaardige afwerking en materiaalkeuze, maatkasten, uitzonderlijk uitzicht, e.d.
Gelegen in een zéér kleinschalige residentie, bestaande uit slechts twee ‘appartementen’. Dit zorgt voor de beleving van een woonhuis, met de nodige privacy. Wonen in een rustige landelijke omgeving. Ideaal voor wie rust wil combineren met bereikbaarheid. Verder zijn er diverse natuurgebieden in de buurt.
De aanpalende/voorliggende woonst wordt eveneens te koop aangeboden via Vastgoedkantoor MARVY.
TROEVEN:
- Beleving van een woonhuis (HOB)
- Volledig instapklaar
- 2 zeer ruime terrassen met prachtig uitzicht
- Grote raampartijen / Veel lichtinval
- Grote tuin met bos
- Prachtige ligging aan de rand van een natuurgebied, doch centraal gelegen.
- Elektriciteit: reeds conform
| Naam |
Gianna GRANAROLI
|
| Prijs |
€ 349.000
|
Gelijkvloers
| Inkomhal |
|
| Toilet |
|
| Woonkamer |
|
| Keuken |
|
| Berging |
|
| Nachthal |
|
| 2x Slaapkamer |
|
| Badkamer |
|
| Dressing |
|
| Garage |
|
| Kelder |
|
| EPC |
283 kWh/m2/jaar
|
| Label |
|
283 kWh/m2/jaar
| Bewoonbare opp. |
173 m²
|
| Elektriciteit |
Ja
|
| Stadswater |
Ja
|
| Stookolie |
Ja
|
| Bouwjaar |
1987
|
| Renovatiejaar |
2002
|
| Elektriciteitscertificaat |
Ja, Conform
|
| Bouwvergunning |
Niet ingegeven
|
| Verkavelingsvergunning |
Niet ingegeven
|
| Voorkooprecht |
Niet ingegeven
|
| Beschermd erfgoed |
Niet ingegeven
|
| Renovatieplicht |
Niet ingegeven
|