Vastgoedkantoor MARVY
Dieplaan 67
3600
Genk
T.+32 89 36 45 50
E.info@marvy.be
ENERGIEZUINIG, INSTAPKLAAR APPARTEMENT
Intrekklaar appartement voor € 229.000
Hoevenzavellaan 30/1,
3600
Genk
Bekijk op kaart
Ref: VD/2026
ENERGIEZUINIG, INSTAPKLAAR APPARTEMENT
Instapklaar, energiezuinig appartement met zonnig terras. Op wandelafstand van de supermarkt en dagelijkse voorzieningen, gelegen in een kleinschalige residentie.
Kwaliteit en comfort: energiezuinig EPC (B-label), elektriciteit reeds conform, volledig asbestveilig, ruime en lichtrijke leefruimtes en voorzien van een recente, moderne keuken uitgerust met kwalitatieve toestellen.
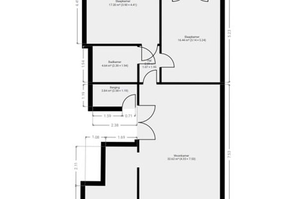
INDELING:
Zeer ruime leefruimte (+/- 7,50 x 4,30m), volledig uitgeruste moderne keuken voorzien van kwaliteitstoestellen (AEG vaatwasser – SIEMENS oven, SMEG kookplaat e.d.) , berging, badkamer (douchecabine – lavabomeubel - toilet), 2 zéér ruime SLAAPKAMERS (+/- 4,50 x 3,90m) en (+/- 4,80 x 3,20m) waarvan 1 uitgevend op het zonnige terras rustig gelegen aan de achterzijde.
+ Zonnig TERRAS (Zuid-georiënteerd / achterzijde)
+ AUTOSTAANPLAATS
Centraal gelegen, op minder dan 5 minuten wandelafstand van Carrefour Express, Kruidvat en de apotheek. Bovendien nabij scholen (Atlas College, CVO Qrios, kleuter- en lagere jongensschool) en het openbaar vervoer.
Vlotte verbinding via E314, N76 naar Genk,centrum, Houthalen, Oudsbergen en Maasmechelen.
TROEVEN
Instapklaar, energiezuinig appartement met zonnig terras. Op wandelafstand van de supermarkt en dagelijkse voorzieningen, gelegen in een kleinschalige residentie.
Kwaliteit en comfort: energiezuinig EPC (B-label), elektriciteit reeds conform, volledig asbestveilig, ruime en lichtrijke leefruimtes en voorzien van een recente, moderne keuken uitgerust met kwalitatieve toestellen.
INDELING:
Zeer ruime leefruimte (+/- 7,50 x 4,30m), volledig uitgeruste moderne keuken voorzien van kwaliteitstoestellen (AEG vaatwasser – SIEMENS oven, SMEG kookplaat e.d.) , berging, badkamer (douchecabine – lavabomeubel - toilet), 2 zéér ruime SLAAPKAMERS (+/- 4,50 x 3,90m) en (+/- 4,80 x 3,20m) waarvan 1 uitgevend op het zonnige terras rustig gelegen aan de achterzijde.
+ Zonnig TERRAS (Zuid-georiënteerd / achterzijde)
+ AUTOSTAANPLAATS
Centraal gelegen, op minder dan 5 minuten wandelafstand van Carrefour Express, Kruidvat en de apotheek. Bovendien nabij scholen (Atlas College, CVO Qrios, kleuter- en lagere jongensschool) en het openbaar vervoer.
Vlotte verbinding via E314, N76 naar Genk,centrum, Houthalen, Oudsbergen en Maasmechelen.
TROEVEN
- Ruime, lichtrijke ruimtes
- Gunstig EPC (Blabel)
- Elektriciteit conform (!)
- Asbestveilig
- Terras (Zuidgeoriënteerd / achterzijde)
- Autostaanplaats
- Centraal gelegen, op wandelafstand van diverse scholen, horecaen handelszaken
| Naam |
Laura GRAULS
|
| Prijs |
€ 229.000
|
Gelijkvloers
| Parkeerplaats |
|
Verdieping 1
| Woonkamer |
|
| Keuken |
|
| Berging |
|
| Nachthal |
|
| Badkamer |
|
| 2x Slaapkamer |
|
| Terras |
|
| EPC |
125 kWh/m2/jaar
|
| Label |
|
125 kWh/m2/jaar
| Bewoonbare opp. |
100 m²
|
| Aardgas |
Ja
|
| Videofoon |
Ja
|
| Beglazing |
Dubbele
|
| Keuken |
Geïnstalleerd
|
| Verwarming |
Aardgas
|
| Verdieping |
1
|
| Bouwjaar |
1966
|
| Bebouwing |
Gesloten
|
| Algemene staat |
Gerenoveerd
|
| Elektriciteitscertificaat |
Ja, Conform
|
| Bouwvergunning |
Niet ingegeven
|
| Verkavelingsvergunning |
Niet ingegeven
|
| Voorkooprecht |
Neen
|
| Beschermd erfgoed |
Neen
|
| Renovatieplicht |
Niet ingegeven
|