Vastgoedkantoor MARVY
Dieplaan 67
3600
Genk
T.+32 89 36 45 50
E.info@marvy.be
INSTAPKLAAR GELIJKVLOERS APPARTEMENT (H.O.B)
Gelijkvloers app. voor € 349.000
Dijkbeemdenweg 30/3,
3520
Zonhoven
Bekijk op kaart
Ref: VD23/2026
INSTAPKLAAR GELIJKVLOERS APPARTEMENT (H.O.B)
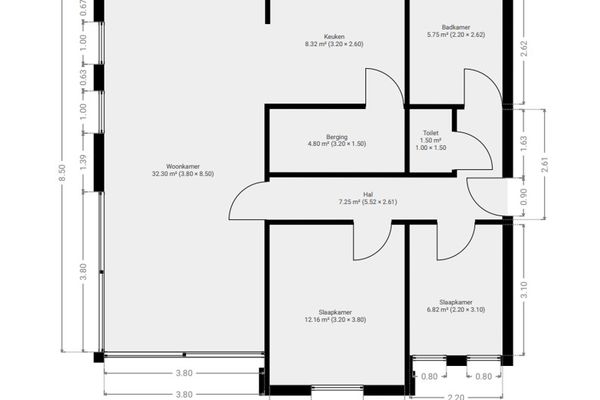
Instapklaar energiezuinig gelijkvloers appartement voorzien van terras uitgevend op de privatieve tuin van maar liefst +/- 128m2.
INDELING
Inkomhal, toilet, zeer ruime leefruimte (+/- 8,50 x 3,80m) voorzien van grote raampartijen uitgevend op het terras en de privatieve tuin (+/- 128m2), geïnstalleerde keuken, berging/ wasplaats, badkamer (inloopdouche – lavabomeubel), 2 SLAAPKAMERS (+/- 3,80 x 3,20m) (+/- 3,10 x 2,20m).
+ Zonnig TERRAS + privatieve VOORTUIN +/- 128m2
+ Zeer ruime ondergrondse AUTOSTAANPLAATS
(+/- 4m breed)
+ Ondergrondse KELDERBERGING
Het appartement beschikt over de grootste privatieve tuin van de volledige residentie.
Aangename ligging in het centrum van Zonhoven aan een rustige doodlopende straat met enkel plaatselijk verkeer.
Zeer centrale ligging en nabij supermarkten (Delhaize, Albert Heijn, Lidl en Colruyt) / scholen (Sint-Jan Berchmansinstituut, GO! Next basisschool Kosmos).
Vlotte verbinding via de N74 naar Hasselt, Houthalen-Helchteren en via de N72 richting Heusden-Zolder.
TROEVEN
Instapklaar energiezuinig gelijkvloers appartement voorzien van terras uitgevend op de privatieve tuin van maar liefst +/- 128m2.
INDELING
Inkomhal, toilet, zeer ruime leefruimte (+/- 8,50 x 3,80m) voorzien van grote raampartijen uitgevend op het terras en de privatieve tuin (+/- 128m2), geïnstalleerde keuken, berging/ wasplaats, badkamer (inloopdouche – lavabomeubel), 2 SLAAPKAMERS (+/- 3,80 x 3,20m) (+/- 3,10 x 2,20m).
+ Zonnig TERRAS + privatieve VOORTUIN +/- 128m2
+ Zeer ruime ondergrondse AUTOSTAANPLAATS
(+/- 4m breed)
+ Ondergrondse KELDERBERGING
Het appartement beschikt over de grootste privatieve tuin van de volledige residentie.
Aangename ligging in het centrum van Zonhoven aan een rustige doodlopende straat met enkel plaatselijk verkeer.
Zeer centrale ligging en nabij supermarkten (Delhaize, Albert Heijn, Lidl en Colruyt) / scholen (Sint-Jan Berchmansinstituut, GO! Next basisschool Kosmos).
Vlotte verbinding via de N74 naar Hasselt, Houthalen-Helchteren en via de N72 richting Heusden-Zolder.
TROEVEN
- Gunstig EPC (Blabel)
- Zonnig terras
- Grootste privatieve tuin van de volledige residentie (+/ 128m2)
- Ruime ondergrondse autostaanplaats nr.4
- Kelderberging nr.14
- Centraal gelegen nabij supermarkten en scholen
| Naam |
Laura GRAULS
|
| Prijs |
€ 349.000
|
Verdieping -1
| Parkeerplaats |
|
| Berging |
|
Gelijkvloers
| Inkomhal |
|
| Toilet |
|
| Woonkamer |
|
| Keuken |
|
| Berging |
|
| 2x Slaapkamer |
|
| Terras |
|
| Tuin |
|
| EPC |
171 kWh/m2/jaar
|
| Label |
|
171 kWh/m2/jaar
| Bewoonbare opp. |
94 m²
|
| Aardgas |
Ja
|
| Videofoon |
Ja
|
| Bouwjaar |
1999
|
| Bebouwing |
Halfopen
|
| Algemene staat |
Instapklaar
|
| Lift |
Neen
|
| Bouwvergunning |
Niet ingegeven
|
| Verkavelingsvergunning |
Niet ingegeven
|
| Voorkooprecht |
Neen
|
| Beschermd erfgoed |
Neen
|
| Renovatieplicht |
Niet ingegeven
|
